Texto SAL
El cambio epistemológico traído desde el giro espacial hacia las ciencias sociales (Soja, 1996) y la arquitectura (Quesada, 2016), se ha visto profusamente aplicado en la última década para el análisis sobre pasados y presentes violentos en América Latina (Schindel y Colombo, 2014; González y Salamanca, 2019; Schindel, 2013; Fabri, 2016). Estos enfoques han posibilitado resaltar el relacionamiento que existe entre las violencias patrocinadas por los Estados y la producción social del espacio, y cómo esto influye en las memorias, los imaginarios y las prácticas sociales (Shindel y Colombo, 2014). Estudiar las espacialidades de la violencia estatal y la excepción (Agamben, 1998) implica considerar las subjetividades producidas mediante estos procesos violentos, las diversas formas en que actores y grupos recuerdan y disputan significados sobre lo acontecido (Jelin y Langland, 2003), los efectos y afectos que emanan esas materialidades (Navarro-Yashin, 2013) y las maneras de vivir y usar los espacios como partes integrantes de los paisajes modificados por la violencia.
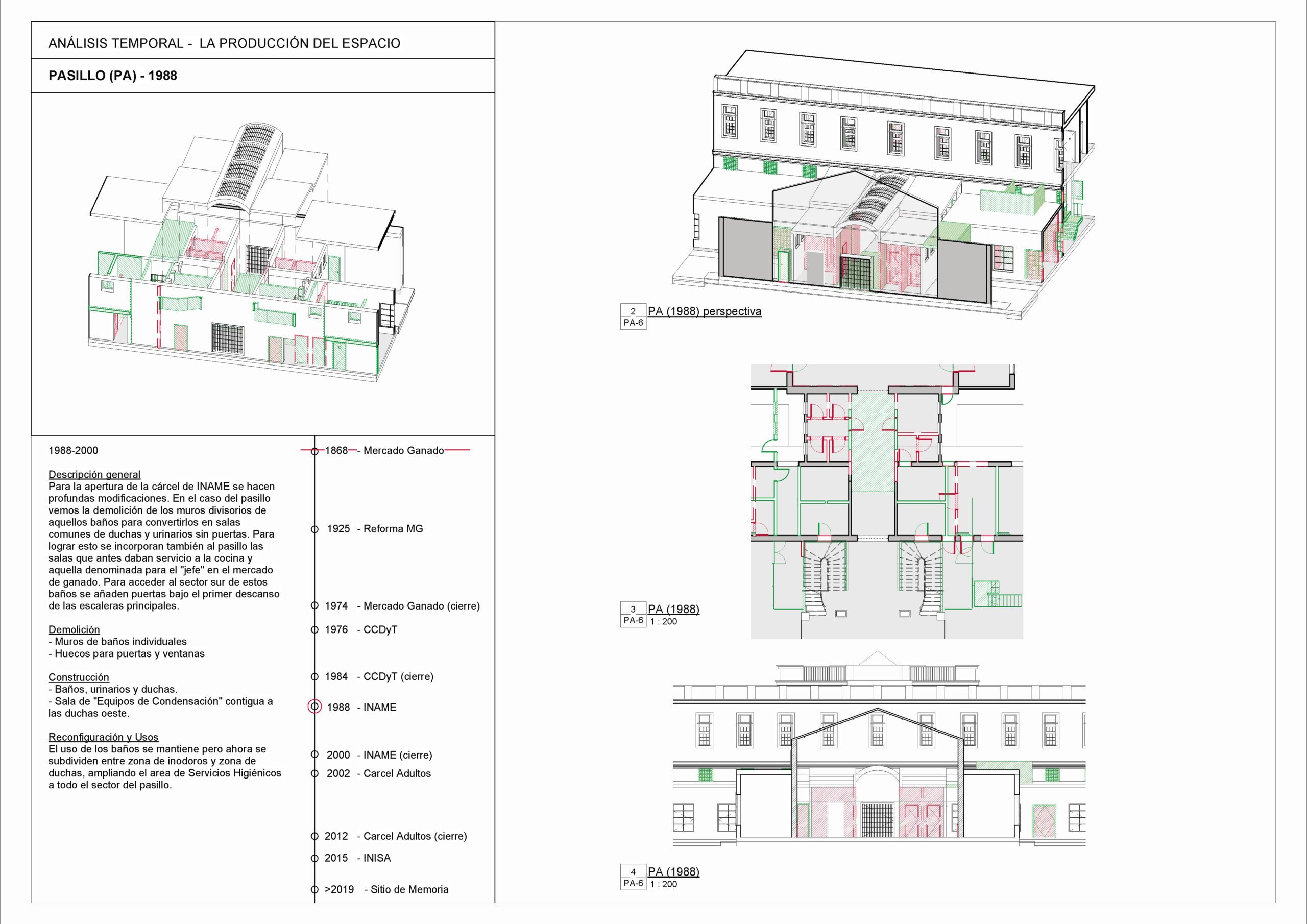
En el caso uruguayo, desde la aprobación en 2018 de la ley N° 19.641 de declaración y creación de Sitios de Memoria Histórica del Pasado Reciente, se ha iniciado un proceso de demanda por la “recuperación” (Feld, 2011) sobre los denominados sitios “auténticos” (Robin, 2014). Este es el caso del ex Centro Clandestino de Detención y Tortura «Base Roberto», instalado sobre un antiguo mercado de ganado de 64 ha, que en 2019 fue declarado como Sitio de Memoria, y actualmente se encuentra en proceso de refuncionalización por parte de su comisión, integrada por familiares de víctimas, sobrevivientes, vecinas y vecinos, y miembros de la comunidad universitaria. En la siguiente ponencia abordaremos algunas herramientas de la praxis arquitectónica desarrollada en este lugar, a partir del trazado de las intersecciones entre la espacialización del testimonio, las relaciones materiales, y las propuestas a futuro de los actores involucrados. Desde una perspectiva interdisciplinaria, se han podido trazar vínculos y contradicciones entre el espacio material e imaginado, así como hipótesis sobre la cotidianidad represiva, resultantes de la interpretación de los análisis de configuración espacial y mapas axiales (Hillier y Hanson, 1984). Estas técnicas de representación y subjetivación del espacio, por sus capacidades interpretativas y expresivas, han servido también como regla mnemotécnica para el testimonio (Weizman, 2019), así como modelo de territorialización programática colectiva, en forma de Plan Maestro “dialógico” o “en semilla” (Sennet, 2006), y que hoy sirve como hoja de ruta para la construcción del sitio de memoria.










